Lange Leemstraat 374 - 2000 ANTWERPEN

GELIJKVLOERS KANTOOR:

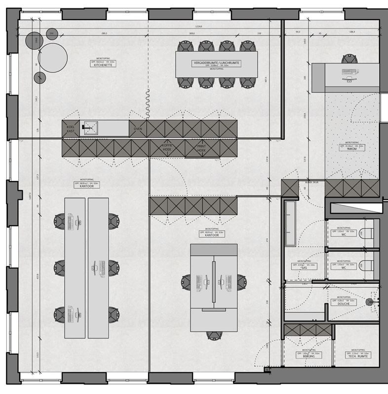
Indeling volgens plan:

- Leef-Eetruimte: Kitchenette + Eetruimte 42m²

- Receptie/inkom/hal 27m²

- Toiletten / Douche-Kleedcabine 14m²

- Berging 5m²

- Kantoor 26m²

- Kantoor 32m²

 

BIJZONDERHEDEN:

° Nieuwbouw complex met Uniek Karakter

° Mogelijkheden tot ondergrondse parkeerplaatsen

° Polyvalent Plein eigen aan het Complex

° CASCO in te richten

 

 

GRONDAANDEEL €101.283,67 onderworpen aan registratierechten

CONSTRUCTIE €323936,76 onderworpen aan 21% BTW

 

Prijs: € 369.000
UNIEK CASCO NIEUWBOUW KANTOOR CA. 150M² IN COMPLEX CONFISERIE
Contacteer ons

Door dit formulier te verzenden verklaart u zich akkoord met ons privacy statement.

03 283 57 00
Algemeen
Prijs: € 369.000
Adres: Lange Leemstraat 374, 2000 ANTWERPEN
Bouwjaar: 2025
Financiële Info
Energie certificaat
EPC: Niet van toepassing
Comfort
Verwarming: Niet meegedeeld
Keuken: Niet meegedeeld
Beglazing: Driedubbel
Raamkozijn: alu
Ruimtelijke ordening
Voorkooprecht: Nog niet aangevraagd
Bouwvergunning verkregen: Nog niet aangevraagd
Dagvaarding uitgebracht: Nog niet aangevraagd
Verkavelingsvergunning: Nog niet aangevraagd
Bestemming: Nog niet aangevraagd
Erfgoed: Nee
Indeling